Navigation überspringen Sitemap anzeigen
ALCOTT Modegeschäft im Einkaufszentrum mit beleuchtetem Eingang

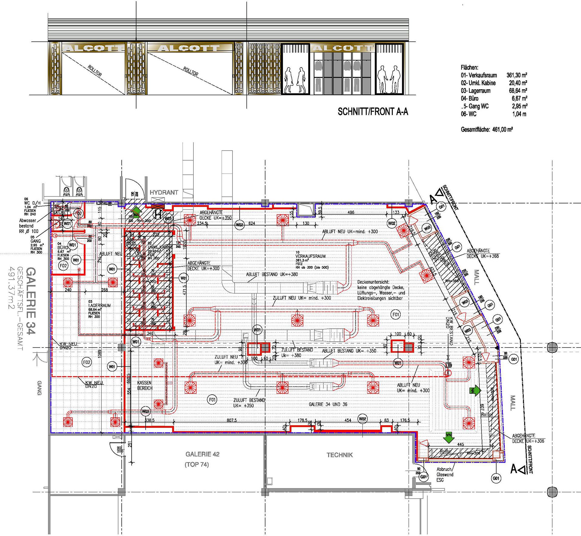
Shop ALCOTT

Shops & Restaurants

Ort: SCS Wien Süd- Vösendorf
Status: gebaut
Typ: Mode Geschäft

Gesamtfläche: 500 m"

Baubeginn: August 2014
Fertigstellung: Dezember2014

Zum Seitenanfang