Navigation überspringen Sitemap anzeigen
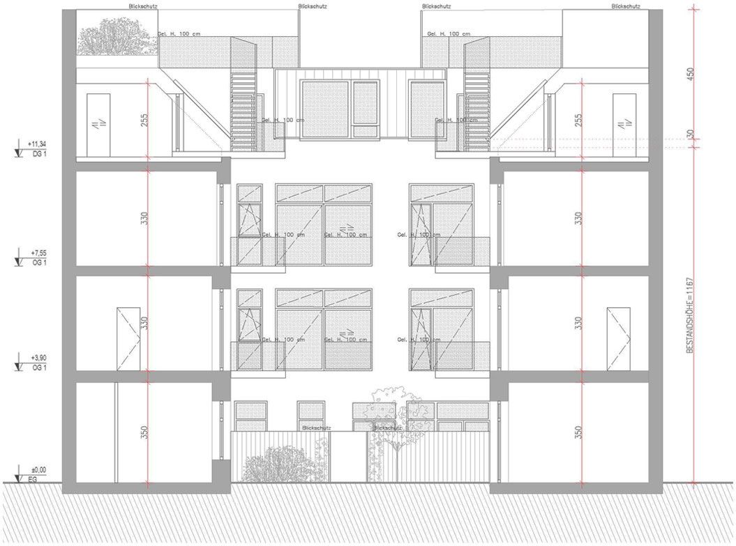
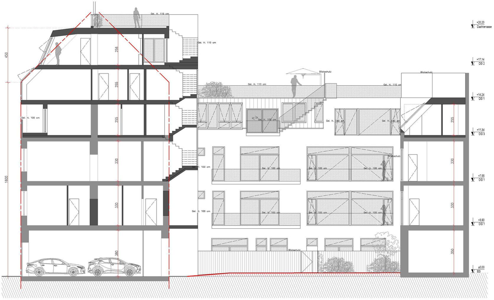
Sanierte Gründerzeitfassade mit modernem Dachausbau

Wohnhaus Wien 1160

Wohnbauten

Ort: Wien 1160
Status: Entwurf
Typ: Wohnhaus - Umbau, Zubau und Dachausbau

23 Wohnungen
Bebaute Fläche: 590 m²
Gesamtfläche: 1970 m²

Bauweise: Massivbau & Holzbau

Heizungssystem: Monovalente Wärmepumpe

Zum Seitenanfang